AOS-ITX54U

產品介紹:
主板詳細規格
項目 | 描述 | |||
處理器 | Intel®Core i3-4030U | Intel®Core i3-5005U | Intel®Core i5-4300U | Intel®Core i5-5300U |
雙核1.9GHz | 雙核2.0GHz | 雙核1.9GHz (Up to 2.9GHz) | 雙核2.3GHz (Up to 2.9GHz) | |
可兼容Intel Celeoron,Pentium,Core®I3/I5/I7 Haswell/Broadwell-U系列處理器 | ||||
內 存 | 2*SO-DIMM內存插槽,支持雙通道1600/1333MHz DDR3L/1.35V內存,最大支持16GB | |||
顯 示 | 集成Intel® HD Graphics 4400 核心顯卡 | |||
1* VGA,1*HDMI接口,1*LVDS或eDP接口(二選一,默認為LVDS) | ||||
支持VGA、HDMI、LVDS或eDP同步/異步顯示 | ||||
網 絡 | 2* realtek RTL8111H千兆網卡(1個網絡可選),支持網絡喚醒/PXE | |||
存 儲 | 1* 2.5寸SATA3.0硬盤接口 | |||
1* SATA3.0接口 | ||||
1* mSATA3.0插槽(長卡) | ||||
音 頻 | 板載ALC897 7.1聲道高保真音頻控制器,支持MIC/Line-out,功放(2歐5W雙聲道) | |||
擴展插槽 | 1* Mini-PCIe插槽(半卡和長卡都支持),支持WIFI/4G模塊 | |||
1* Mini-PCIe插槽(半卡,可選),支持WIFI模塊 | ||||
背板I/O接口 | 1* HDMI顯示接口 | |||
1* VGA顯示接口(和COM1二選一) | ||||
2* USB3.0 接口 | ||||
2* RJ-45 千兆網絡接口(其中LAN2與USB2.0接口為二選一) | ||||
1* Line out接口(綠色)、1* MIC接口(紅色) | ||||
1* 12V DC電源輸入接口 | ||||
內置I/O接口 | 1* JHDMI接口 2*8Pin(可選,與HDMI標準接口同信號) | |||
1* JVGA接口 1*12Pin(與DB15同信號) | ||||
1* LVDS接口 2*15pin,支持雙通道24bit(和eDP二選一,默認) | ||||
1* 屏背光供電接口 1*6pin | ||||
1* eDP接口 2*15pin(和LVDS二選一,可選) | ||||
4* USB 2.0接口 2*5Pin(當支持雙網時,支持6個USB2.0接口) | ||||
1* 前置音頻接口 2*5pin | ||||
1* 功放接口 1*4pin | ||||
6* COM接口(其中COM1/COM2可支持RS485,COM3-4可選支持RS485,COM3可選支持RS422,COM1/2第9P帶電) | ||||
1* LPT接口 | ||||
1* PS2接口1*6Pin | ||||
1* 硬盤供電接口 | ||||
1* 4pin ATX電源接口 | ||||
1* 前面板開關按鈕和指示燈接口 2*5Pin | ||||
風扇接口 | 1*4pin CPU風扇接口,1*4pin系統風扇接口 | |||
GPIO | 支持4路輸入輸出GPIO | |||
BIOS | 64Mb Flash ROM | |||
看門狗 | 支持硬件復位功能(256級,0~255秒) | |||
操作系統 | Windows 7/Windows 10/Linux | |||
電源類型 | 采用DC 12V電源供電 | |||
工作溫度 | -20℃~60℃ | |||
儲存溫度 | -20℃~70℃ | |||
工作濕度 | 5%-95%相對濕度,無冷凝 | |||
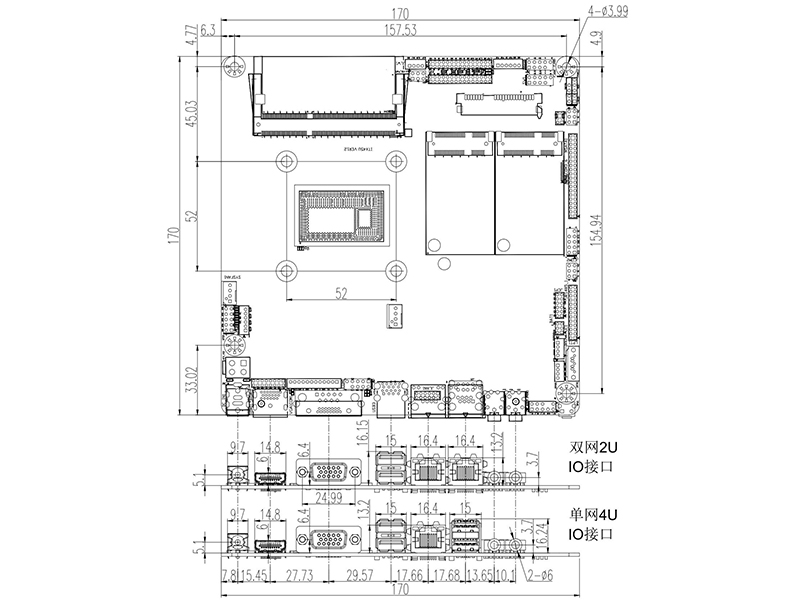
尺 寸 | 170mm x 170mm | |||
訂購信息
序號 | 型號 | CPU | 核數 | 頻率 | 內存 | HDMI | VGA | LVDS | EDP | LAN | USB | PS2 | LPT | COM/485 | POWER |
1 | AOS-ITX54U -4030U VER1.1 | I3-4030U | 2 | 1.9G | DDR3L | 1 | 1 | 1 | / | 1 | 8 | 1 | 1 | 2 / 1 | 12V |
2 | AOS-ITX54U -4300U VER1.1 | I5-4300U | 2 | 1.9G | DDR3L | 1 | 1 | 1 | / | 1 | 8 | 1 | 1 | 2 / 1 | 12V |
3 | AOS-ITX54U -4300U VER1.1 | I5-4300U | 2 | 1.9G | DDR3L | 1 | 1 | 1 | / | 2 | 8 | 1 | 1 | 6 / 2 | 12V |
4 | AOS-ITX54U -5300U VER1.1 | I5-5300U | 2 | 2.3G | DDR3L | 1 | 1 | 1 | / | 2 | 8 | 1 | 1 | 6 / 2 | 12V |
尺寸圖
應用領域
ITX系列工業主板,支持haswell-U或Broadwell-U整個系列CPU。可廣泛應用于商顯、機器視覺、醫療儀器、工業控制、金融設備、云終端等領域。